News Flash Home
The original item was published from 10/27/2020 3:54:59 PM to 2/19/2025 3:18:00 PM.

News Flash

News Releases

Posted on: October 27, 2020

[ARCHIVED] Fire Department Concept Drawings Review

whatsupintroy-default

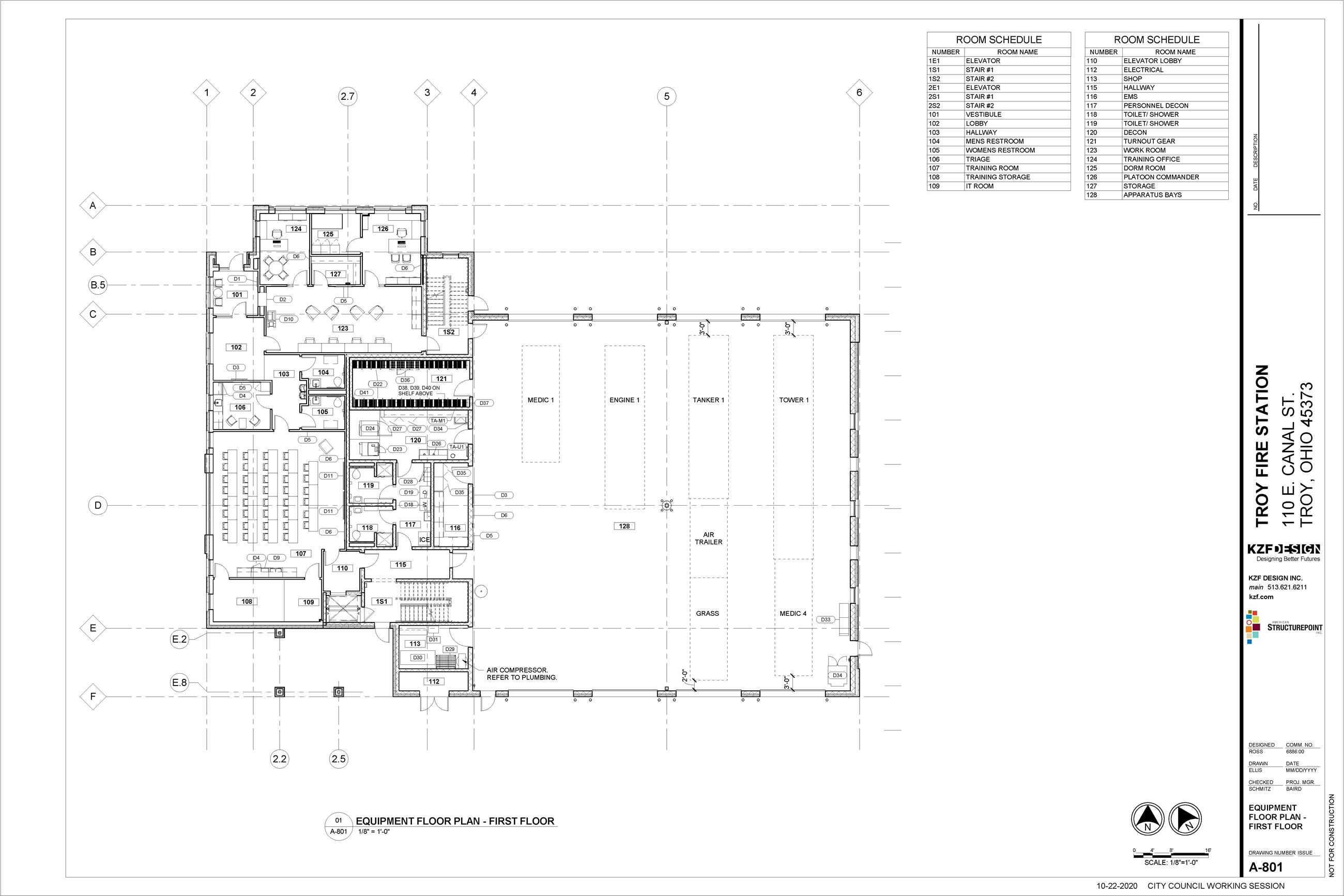
At its October 26 work session, Council members reviewed the concept drawings for the new Fire Station to be located at 110 E. Canal. The $6 million building, which will replace existing Fire Station 1 on Race Street, is slated to start construction in Spring of 2021.

688600_A1.04 - AERIAL SITE PLAN 24x36


FS 1 Exterior Elevations A-220

688600_A-801 - EQUIPMENT FLOOR PLAN - FIRST FLOOR_revised apparatus layout

688600_A-801 - EQUIPMENT FLOOR PLAN - FIRST FLOOR_revised apparatus layout

Other News in News Releases

whatsupintroy-default

Troy Truck Yard to Return for 2026

Posted on: March 23, 2026
whatsupintroy-default

Dye Mill Road Compost Facility Open

Posted on: March 4, 2026
whatsupintroy-default

Annual Spring Clean-Up Week Announced

Posted on: February 19, 2026
whatsupintroy-default

2026 Paving Program Awarded by Council

Posted on: February 18, 2026
whatsupintroy-default

Recycling Award Winner Announced

Posted on: February 18, 2026
whatsupintroy-default

Save the Date - June 6 Event

Posted on: February 10, 2026
whatsupintroy-default

Reinvesting in Troy Aquatic Park

Posted on: February 3, 2026
whatsupintroy-default

2025 Municipal Income Tax Information

Posted on: January 14, 2026
whatsupintroy-default

Electric Aggregation FAQs

Posted on: November 11, 2025
whatsupintroy-default

Revolving Loan Fund Update

Posted on: October 6, 2025
whatsupintroy-default

Natural Gas Aggregation

Posted on: August 13, 2025
whatsupintroy-default

Rock the Block Coming to Troy

Posted on: April 22, 2025
whatsupintroy-default

Structure Fire

Posted on: April 20, 2025
whatsupintroy-default

Welfare Check Investigation

Posted on: April 19, 2025
whatsupintroy-default

4/13 Police Pursuit

Posted on: April 14, 2025
whatsupintroy-default

Comprehensive Plan Approved

Posted on: November 12, 2024
whatsupintroy-default

Downtown Streetscape Project Updates

Posted on: September 13, 2024
whatsupintroy-default

Troy DORA Set to Launch

Posted on: November 18, 2021